а флудня разве не для этого?Чемберлен писал(а): 19 ноя 2025, 19:19 Всякая беседа, как правило, перетекает.
Не будет перетекать, значит завянет.
Обсуждение недвижимости
Модератор: news
-
Трампампам
- Сообщения: 20925
- Зарегистрирован: 20 янв 2019, 08:53
- Пол: Женский
Обсуждение недвижимости
-
Трампампам
- Сообщения: 20925
- Зарегистрирован: 20 янв 2019, 08:53
- Пол: Женский
Обсуждение недвижимости
Вот почитала вчера тигру и тоже теперь руки чешутся что-нибудь купить. 
-
domovoj
- Поставщик контента
- Сообщения: 8897
- Зарегистрирован: 02 апр 2019, 15:18
- Пол: Мужской
-
Euphoria
- Сообщения: 9065
- Зарегистрирован: 06 янв 2019, 00:07
- Пол: Не выбран
Обсуждение недвижимости
Трампампам, так она по факту ничего не купила, а на ближайшие 2 года спустила в унитаз 3+ ляма и влезла в кабалу
Спойлер
-
Советник
- Сообщения: 9839
- Зарегистрирован: 31 янв 2024, 15:48
- Откуда: ГО город Грозный
- Пол: Мужской
Обсуждение недвижимости
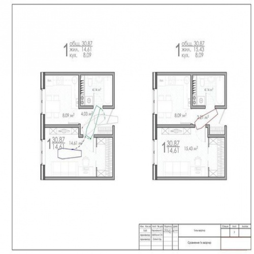
Стандартные размеры двуспальной кровати — это спальное место от 160x200 см до 180x200 см, но могут варьироваться от 140 см до 220 см в ширину и от 185 см до 220 см в длину.
На планировке условный масштаб кровати примерно соответствует размерам комнаты.
Между кроватью и стеной остается проход шириной примерно 80 см.
Это хорошо, чтобы дети не бегали в этой комнате.
На планировке условный масштаб кровати примерно соответствует размерам комнаты.
Между кроватью и стеной остается проход шириной примерно 80 см.
Это хорошо, чтобы дети не бегали в этой комнате.
-
Тигренок
- Сообщения: 14266
- Зарегистрирован: 28 янв 2019, 14:40
- Пол: Женский
Обсуждение недвижимости
Euphoria, ой не каркай
А так была бы вероятность, что их заморозили и вернули 3 тысячи, в 2050
Как у меня бабушке 20 косарей вернули, и не прокопаешься
А так была бы вероятность, что их заморозили и вернули 3 тысячи, в 2050
Как у меня бабушке 20 косарей вернули, и не прокопаешься
-
domovoj
- Поставщик контента
- Сообщения: 8897
- Зарегистрирован: 02 апр 2019, 15:18
- Пол: Мужской
Обсуждение недвижимости
Нормальная кровать с изголовьем 2100 + телевизор 100 итого 640 мм на проход.Советник писал(а): 19 ноя 2025, 20:39 Стандартные размеры двуспальной кровати — это спальное место от 160x200 см до 180x200 см, но могут варьироваться от 140 см до 220 см в ширину и от 185 см до 220 см в длину.
На планировке условный масштаб кровати примерно соответствует размерам комнаты.
Между кроватью и стеной остается проход шириной примерно 80 см.
Это хорошо, чтобы дети не бегали в этой комнате.
-
Тигренок
- Сообщения: 14266
- Зарегистрирован: 28 янв 2019, 14:40
- Пол: Женский
Обсуждение недвижимости
Я два прошлых раза квартиру брала в запаре теряла зарплатную карту, блокировала и получала новую
Сегодня ещё утром думала интересно чем возьмут
Взяли деньгами за очки (точнее возьмут ещё)
У вас так же, что каждый раз надо расплатиться?
Сегодня ещё утром думала интересно чем возьмут
Взяли деньгами за очки (точнее возьмут ещё)
У вас так же, что каждый раз надо расплатиться?
-
Советник
- Сообщения: 9839
- Зарегистрирован: 31 янв 2024, 15:48
- Откуда: ГО город Грозный
- Пол: Мужской
Обсуждение недвижимости
Да, в квартире всего два телевизора, это весьма ощутимо недостаточно для современного жилья.
-
Тигренок
- Сообщения: 14266
- Зарегистрирован: 28 янв 2019, 14:40
- Пол: Женский
Обсуждение недвижимости
domovoj, вообще бесячая квартира
Сразу и санузел совмещённый и кухня с залом
Чтоб они на том свете вечно стояли в очереди в туалет эти гребаные планировщики
Сразу и санузел совмещённый и кухня с залом
Чтоб они на том свете вечно стояли в очереди в туалет эти гребаные планировщики
-
Советник
- Сообщения: 9839
- Зарегистрирован: 31 янв 2024, 15:48
- Откуда: ГО город Грозный
- Пол: Мужской
Обсуждение недвижимости
Если уменьшить ширину умывальника и отгородить унитаз тонкой перегородкой или даже ширмой - то возможно одновременное пользование санузлом несколькими членами семьи.санузел совмещённый
А вот почему электроплитка и холодильник находятся не в зоне кухни. а в зоне гостиной - это от меня пока что ускользает.
-
ELIXIR
- Сообщения: 8687
- Зарегистрирован: 31 мар 2019, 11:09
- Откуда: Красноярск
- Пол: Не выбран
Обсуждение недвижимости
Ну не скажи. На двоих норм.Тигренок писал(а): 19 ноя 2025, 20:49 Чтоб они на том свете вечно стояли в очереди в туалет эти гребаные планировщики
Потому что это кухня и всё. Просто кухня. Почему обязательно должна быть гостиная?Советник писал(а): 19 ноя 2025, 20:56 А вот почему электроплитка и холодильник находятся не в зоне кухни. а в зоне гостиной - это от меня пока что ускользает.
Последний раз редактировалось ELIXIR 19 ноя 2025, 20:59, всего редактировалось 1 раз.
-
Тигренок
- Сообщения: 14266
- Зарегистрирован: 28 янв 2019, 14:40
- Пол: Женский
Обсуждение недвижимости
Советник, чтоб можно было руку протянул и опа пиво
-
Тигренок
- Сообщения: 14266
- Зарегистрирован: 28 янв 2019, 14:40
- Пол: Женский
Обсуждение недвижимости
ELIXIR, разлет бактерий от унитаза полтора метра
А они там раковину забабахали ещё поди и зубы чистят
А они там раковину забабахали ещё поди и зубы чистят
-
Иван Н
- Спонсоры форума
- Сообщения: 45386
- Зарегистрирован: 17 янв 2019, 03:52
- Откуда: Красноярск
- Пол: Мужской
Обсуждение недвижимости
А как гроб выносить?Советник писал(а): 19 ноя 2025, 20:39На планировке условный масштаб кровати примерно соответствует размерам комнаты.
Между кроватью и стеной остается проход шириной примерно 80 см.


Бабло всегда побеждает зло.
-
ELIXIR
- Сообщения: 8687
- Зарегистрирован: 31 мар 2019, 11:09
- Откуда: Красноярск
- Пол: Не выбран
Обсуждение недвижимости
-
Советник
- Сообщения: 9839
- Зарегистрирован: 31 янв 2024, 15:48
- Откуда: ГО город Грозный
- Пол: Мужской
Обсуждение недвижимости
Тигренок, эта квартира для одинокой женщины - на планировке одна пара женских туфель, а на диване один кот.
На балконе одно кресло.
И множество мест хранения (нечего надеть).
На балконе одно кресло.
И множество мест хранения (нечего надеть).
-
Тигренок
- Сообщения: 14266
- Зарегистрирован: 28 янв 2019, 14:40
- Пол: Женский
Обсуждение недвижимости
Иван Н, ой темнота, домой уже никто не возит
Все в похоронном бюро
Все в похоронном бюро
-
Тигренок
- Сообщения: 14266
- Зарегистрирован: 28 янв 2019, 14:40
- Пол: Женский
Обсуждение недвижимости
Советник, я бы даже сказала для одинокой женщины с ребёнком
-
Советник
- Сообщения: 9839
- Зарегистрирован: 31 янв 2024, 15:48
- Откуда: ГО город Грозный
- Пол: Мужской
Обсуждение недвижимости
Да, правильно.
А пунктирная черта - отграничивает долю в маткапитале, а не делит кухню и гостиную.
